PROJECT DESCRIPTION
송도는 섬이다.
매립 이전의 송도는 바다 – 갯벌 – 육지가 유기적으로 얽혀 있었다.
물의 이동과 흐름에 따라 갯벌 위로 새로운 땅이 드러나고 사라졌다.
대상지는 끊임없이 변화하던 역동적인 대지의 기억을 갖고 있다.
송도는 육지다.
대상지 서측 호수에는 바다로 나가는 출구로 기억되던 섬, 아암도가 있다.
바다를 갈망하던 인천 사람들의 숱한 사연과 애환이 서려있는 그 섬은,
매립된 바다와 함께 풍요로운 대지의 기억을 감추고 육지가 되었다.
송도는 도시다.
건물들이 매립된 땅들을 가득 채워가고 수직선이 도시를 지배한다.
건물이 하늘에 가까워질수록 땅에서도 바다에서도 멀어진다.
수평선과 지평선이 전달하는 수평의 감각은 도시인이 그리워하는 땅의 기억이며 물의 기억이다.
우리의 제안은 대상지의 기억과 특성을 청소년 수련관의 공간적 특징과 중첩시키는 것이다.
물의 이동과 흐름에 따라 드러나고 사라졌던 이전의 대지와 같이 다양하고 유연한 경계를 품은 공간.
아암도가 잃어버린, 바다로 나가는 출구로 기억될 수 있는 떠있는 섬과 같은 공간.
수평의 감각적 확장을 통해 바다를 기억할 수 있는 공간.
DIAGRAM_VERTICALITY VS HORIZONTALITY
기억의 시작
대지(垈地)의 기억은 땅이 아니라 바다에서 시작된다.
달과 태양 사이에서 대지(垈地)는 뭍(陆)이 되기도 물(海)이 되기도 한다.
바다에 속하기도 땅에 속하기도 하는 땅의 파편들,
바다와 땅 사이를 떠다닌다.
기록의 시작
지면(地面)을 얻고 수면(水面)을 잃었다.
메꿔진 바다는 바다와 가까워질수록 물의 기억을 잃어간다.
바다에 속하지도 땅에 속하지도 못하는 땅의 파편들,
바다와 땅 사이에 덩그러니 놓여있다.
대화의 시작
채워지고 남겨진 도시의 틈들은 하늘을 향한다.
도시의 지면(地面)은 수직의 감각이 지배한다.
수직과 수평의 내적 긴장을 통하여 수평의 감각을 확장시킨다.
지면(地面)이 수면(地面)과 만나고 바다를 기억한다.
DIAGRAM _ HISTORY OF RECLAMATION / PLAN / SECTION

SPATIAL STRATEGY
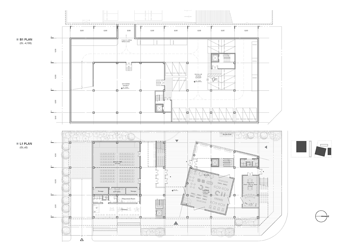
LEVEL 1: 점의 배치 (독립성과 경계의 확장)
대강당과 여가시설 및 부대시설을 중심으로한 편의지원시설을 섬처럼 배치한다. 독립영역으로 구성된 각 프로그램은 다양한 방식으로 열리고 닫히며 공용공간과 외부공간으로 경계를 확장한다. 확장된 영역에는 유연하게 다양한 프로그램들을 수용하며 청소년의 공간적 욕구와 미래의 다양한 변화에 대응한다.
LEVEL 2-3: 선의 연결 (방향성과 연결성)
2층과 3층에는 특성화수련활동장을 중심으로한 활동영역들을 선형적으로 배치한다. 북측 가로 전면공지에서 2층으로 연결되는 외부동선은 남-북축으로 외부데크를 통해 연결되며 도시적으로 확장한다. 도시적 수직성과 대비되어 수평적으로 확장되며 공간적 긴장감을 형성한다.
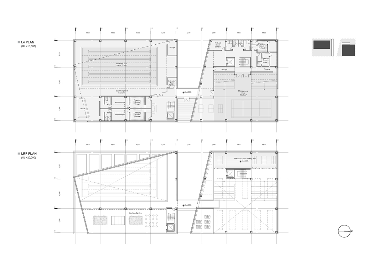
LEVEL 4: 면의 중첩 (둘러쌈과 점의 확장)
최상층에는 대공간을 요구하는 생활체육공간인 수영장과 다목적 체육관을 배치한다. 수영장과 체육관을 중심으로 부수적인 시설들이 배치되며 점의 영역을 확장시키고 면을 중첩시킨다. 섬처럼 떠있는 두개의 대공간을 외피로 둘러싸며 전체의 공간을 조율하고 형태를 결정한다.
MAIN PERSPECTIVE
SITE PLAN
PLAN

MODEL PHOTO
PESPECTIVE_VIEW FROM WEST ENTRANCE
SECTION




PERSPECTIVE_VIEW FROM NORTH-EAST












