
PROGRAM : MEMORIAL HALL
LOCATION: DAEJEON, KOREA
SIZE: 3,035.12 ㎡
YEAR: 2021. 08
TEAM: Youngwook Song, Hyeongjin Kim
PROJECT DESCRIPTION
기억의 시작
권력이 함께 걷지 못하고 우리 앞에 섰을 때,
너와 다른 우리는 경계를 사이에 두고 마주 선다.
옳고 그름의 경계선에서
한걸음 물러서거나 한걸음 나아가거나, 저지선 앞에 선다.
침묵을 배우지 못한 우리는 배움을 실천한다.
혼돈 속으로 나아간다.
기록의 시작
당신을 보호하던 학교의 담장은 우리를 가두는 담장이 되었다.
붉은 담장을 넘어 길을 따라 행진한다.
자유 앞에 놓인 벽/저지선,
그 벽을 향해 걷는다. 따라 걷는다. 그리고 마주한다.
모이고 흩어지고 뭉쳐지며,
저지선을 넘어가다 넘어지며 넘어선다.
대화의 시작
당신 앞에 놓였던 그 벽/저지선을 기억한다.
벽을 향해 걷는다. 따라 걷는다. 그리고 마주한다.
당신을 가로막던 그 벽 너머로,
시선이 교차(crossing) 되고 풍경이 펼쳐지고(open) 빛이 쏟아진다(collecting).
건널 수 없었던 그 다리 위에서,
젊음은 노년이 되었지만, 당신의 정의로움은 언제나 젊다.
MAIN PERSPECTIVE

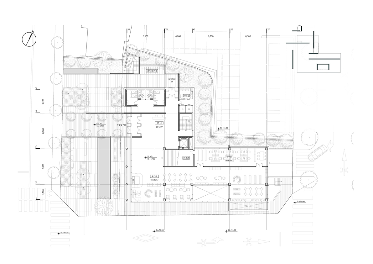
SITE PLAN
DIAGRAM_WALL (PALN)
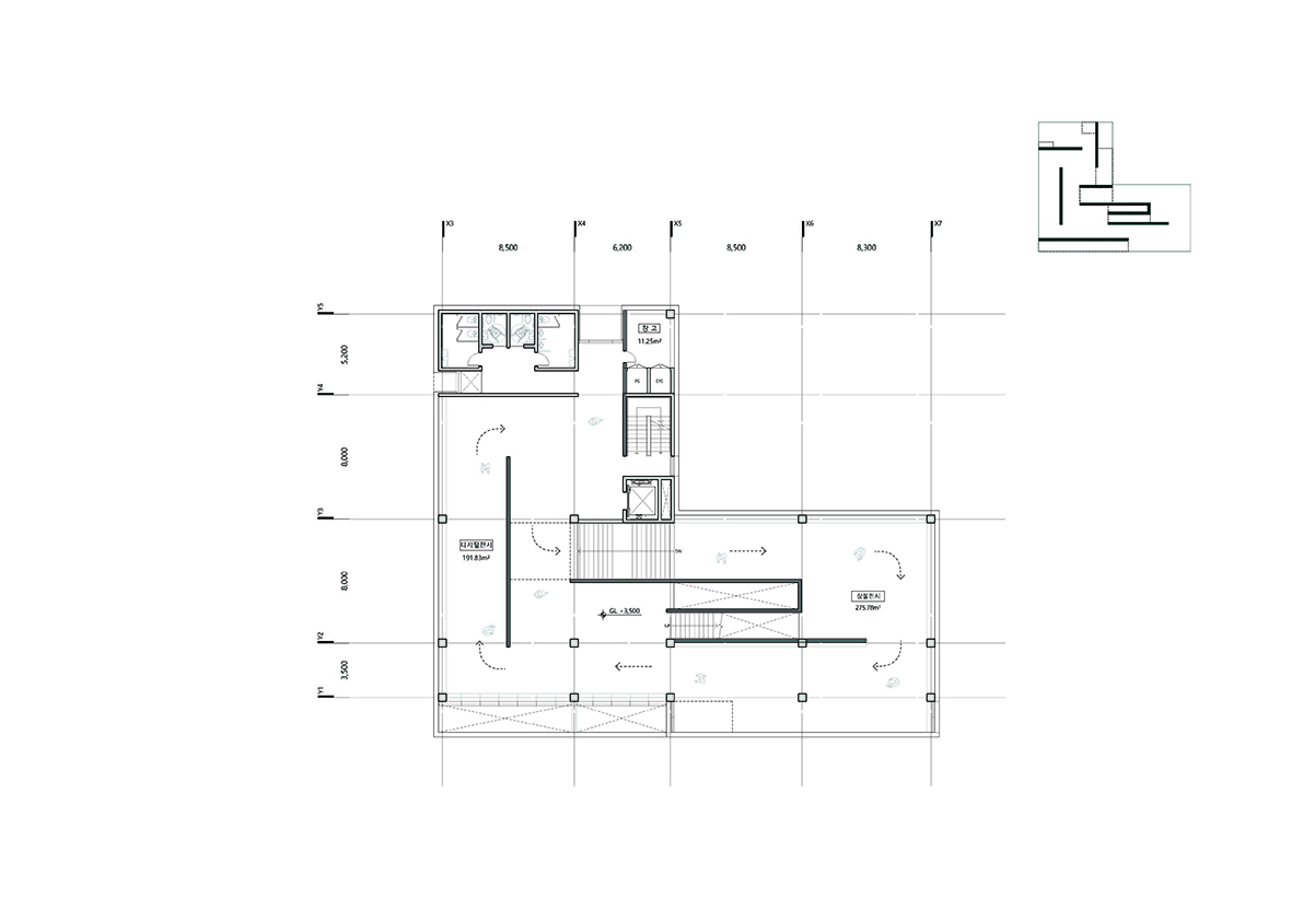
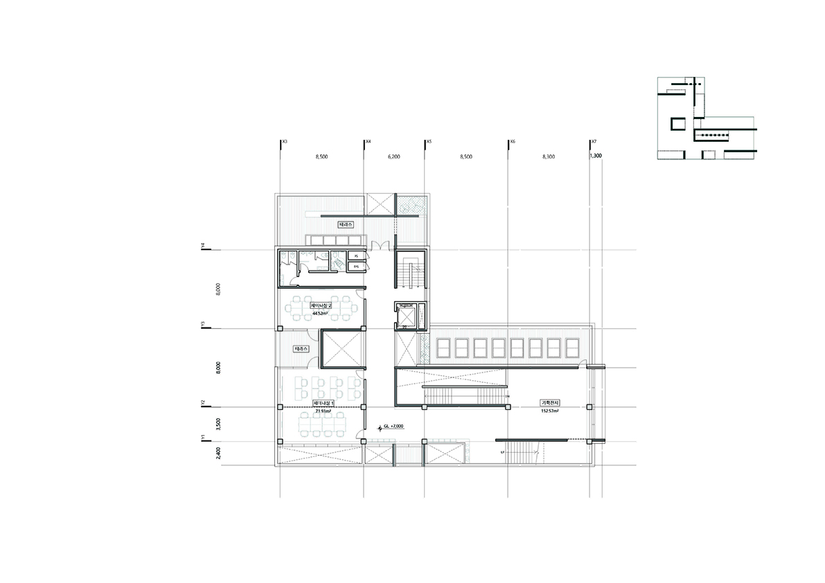
PLAN
DIAGRAM_VOID (PLAN)
SECTION
DIAGRAM_ VOID+WALL (SECTION)
PERSPECTIVE
MODEL


















