
Images
AN EMPTY VALLEY: MU-R 012020C
URBAN RIBBON : MU-A 022012

WANDERING SURFACE : MU-A 012012

BRICK CITY URBAN FARM : MU-A 012010

URBAN RIBON : MU-R 022012B
NESTED URBAN CONDITIONS : MU-R 032012A
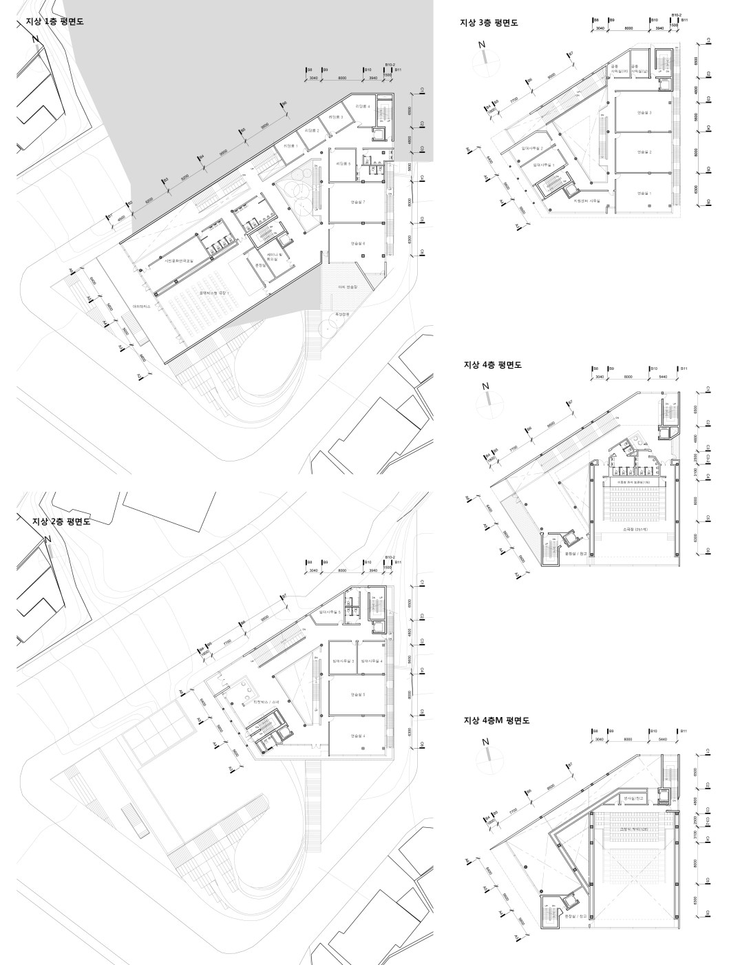
Terra(ce)-Band_theater

PROGRAM : PERFORMING ART CENTER
LOCATION : DONGSOMUN-DONG 1-GA, SEONGBUK-GU, SEOUL
SIZE : 2,760.5㎡
YEAR : 2017

PROJECT DESCRIPTION
This project aims to achieve three main concepts-“Terrace Form”, “Floating Structure” and “Wrapping Facade”. “Terrace Form” creates an architectural connection between the level differences within the site. At the same time, it also extends potential public areas within the project by enforcing existing open spaces in the lower level street and a neighborhood park in the upper level. “Floating Structure” divides required programs into a main theater and its supporting programs. It reduces a large scale of a building and enhances a specific character of the main theater as well. “Wrapping Facade” integrates terraced spaces in the lower level with a floating space as a one architectural language.
This project aims to achieve three main concepts-“Terrace Form”, “Floating Structure” and “Wrapping Facade”. “Terrace Form” creates an architectural connection between the level differences within the site. At the same time, it also extends potential public areas within the project by enforcing existing open spaces in the lower level street and a neighborhood park in the upper level. “Floating Structure” divides required programs into a main theater and its supporting programs. It reduces a large scale of a building and enhances a specific character of the main theater as well. “Wrapping Facade” integrates terraced spaces in the lower level with a floating space as a one architectural language.
















