
PROGRAM : PUBLIC LIBRARY
LOCATION : DONGJAK-GU, SEOUL, KOREA
SIZE : 6,215㎡
YEAR : 2019
COllABORATION : Jung Yub Lee (Atelier Jung)

PROJECT DESCRIPTION
책의 우물+책의 산책로
기존건물의 건축적인 특정을 내부적으로 증폭시키며 도서관 프로그램과 반응시키기 위해 다음 두가지의 장치가 제안된다.
책의 우물+책의 산책로
기존건물의 건축적인 특정을 내부적으로 증폭시키며 도서관 프로그램과 반응시키기 위해 다음 두가지의 장치가 제안된다.
책의 우물: 기존 건물의 균질화된 추상-공간을 도서관 프로그램과 반응하는 다채로운 움직임/행위가 담길 수 있는 머물수 있는 내부-장소로 전환시킨다
책의 산책로: 건물 외부의 도시가로에서부터 내부적으로 확장된 연속적인 길-동선은 건물 전체를 수직적으로 연결시키며 책을 듣고-보고-읽을 수 있는 연속적인 책의 산책로로 전환시킨다.
DIAGRMAS


SECTION PERSPECTIVE
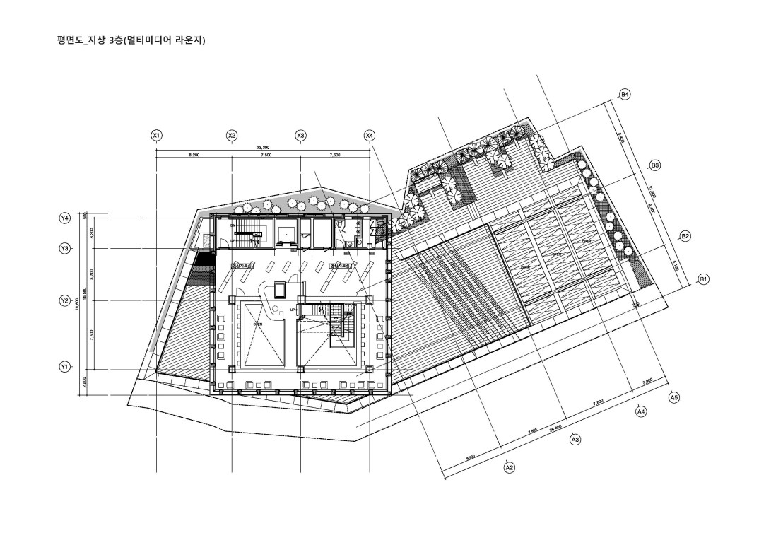
PLANS
















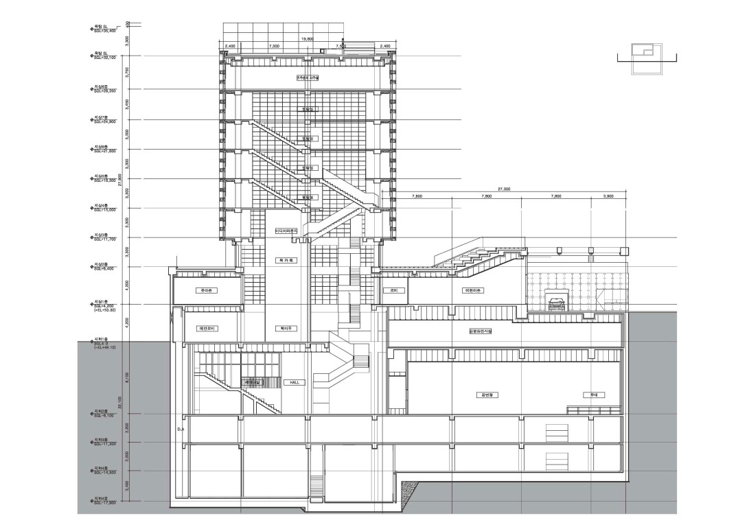
SECTIONS




