EXTENDED CREVICE_community center

ECr-front COMBINE

PROGRAM : COMMUNITY CENTER
LOCATION : JUNGNANG-GU,SEOUL, KOREA
SIZE : 810.7㎡
YEAR : 2019
TEAM : Min Su Cho

 


ECr_I01


PROJECT DESCRIPTION 

ECr_PD


EXTENDED CREVICE
ECr_SP 


PROCESS DIAGRAM
ECr_D01 


ECr_I03


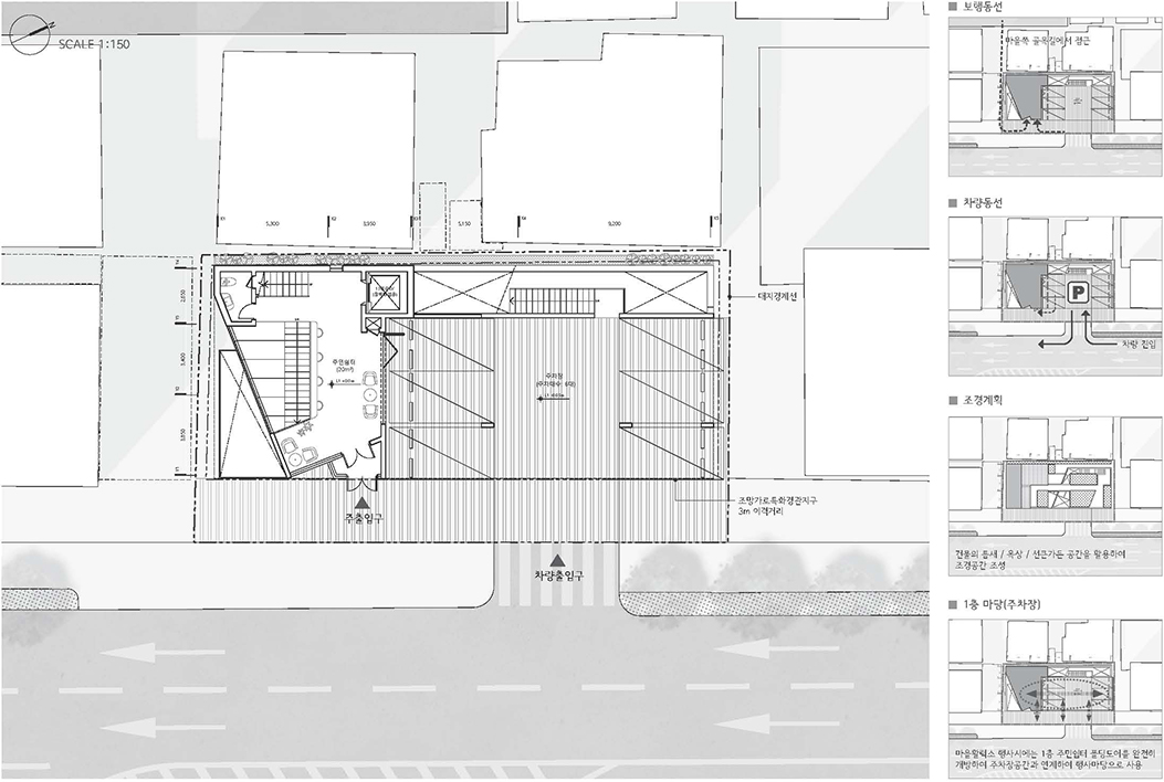
SITE PLAN
ECr_SP01 


ECr_CI01

DIAGRAM
ECr_D02 


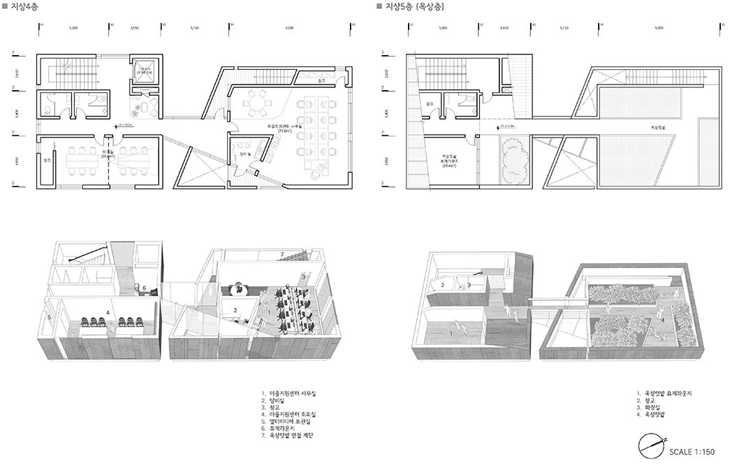
PLANS
ECr_P B1L1 

ECr_P L2L3

ECr_P L4L5


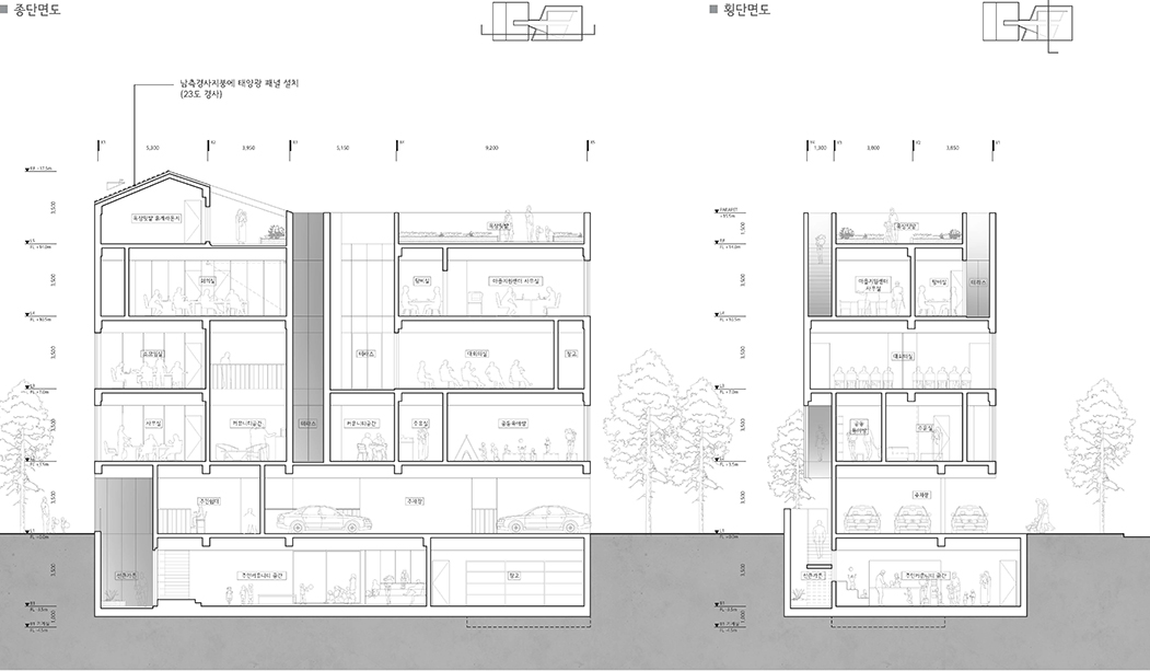
ELEVATION

 


SECTION
ECr_S01 


ECr_I02