PROGRAM : SOC COMPLEX CENTER
LOCATION: SEOUL, KOREA
SIZE: 1,699.85 ㎡
YEAR: 2022. 08
TEAM: Hanseo So, Min Jung Lee
PROJECT DESCRIPTION
기억의 시작
모든 길은 나이가 있고, 대지는 기억을 갖는다.
명확한 의도로 구획되는 도시의 경계선은 어딘가에서는 잔여물을 남긴다.
예각의 대지에는 도시의 문화와 욕망이 적나라하게 담긴다.
남겨진 비정형 땅의 파편들은 너무쉽게 무시되고 소멸되어야하는 대상이 된다.
기록의 시작
대지를 관통하고 분화시키던 움직임의 선들을 다시 기록한다.
남겨진 비정형 대지의 기억을 역전시킨다.
비정형의 경계선에서 시작된 규준선이 주변의 동선과 연결되고 대지내로 확장된다.
대지중앙에 형성된 삼각형의 빈공간이 프로젝트의 시작점이 된다.
대화의 시작
잔여물로서의 남겨진 대지의 기억은 남겨둔 대지의 기억으로 전환된다.
중앙에 놓여진 삼각형의 빈공간을 프로그램이 둘러싼다.
내외부를 교차하며 어린이집이 놓이고 가족센터가 놓인다.
규준선을 따라 비어진 중심으로/중심에서 뻗어나가며 확장되고 접속된다.
SITE ANALYSIS
SITE PLAN

STUDY MODEL
PHASE DIAGRAM
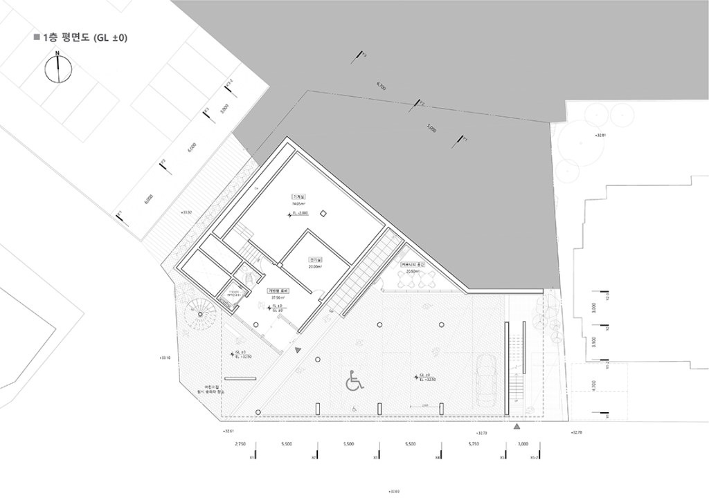
PLAN
SECTION
ELEVATION
PERSPECTIVE

























